Call us today at (717) 258-1459 Quality you deserve with a price you can afford
About Us Testimonials Building Procedures Pre-Priced Plans Request an Estimate
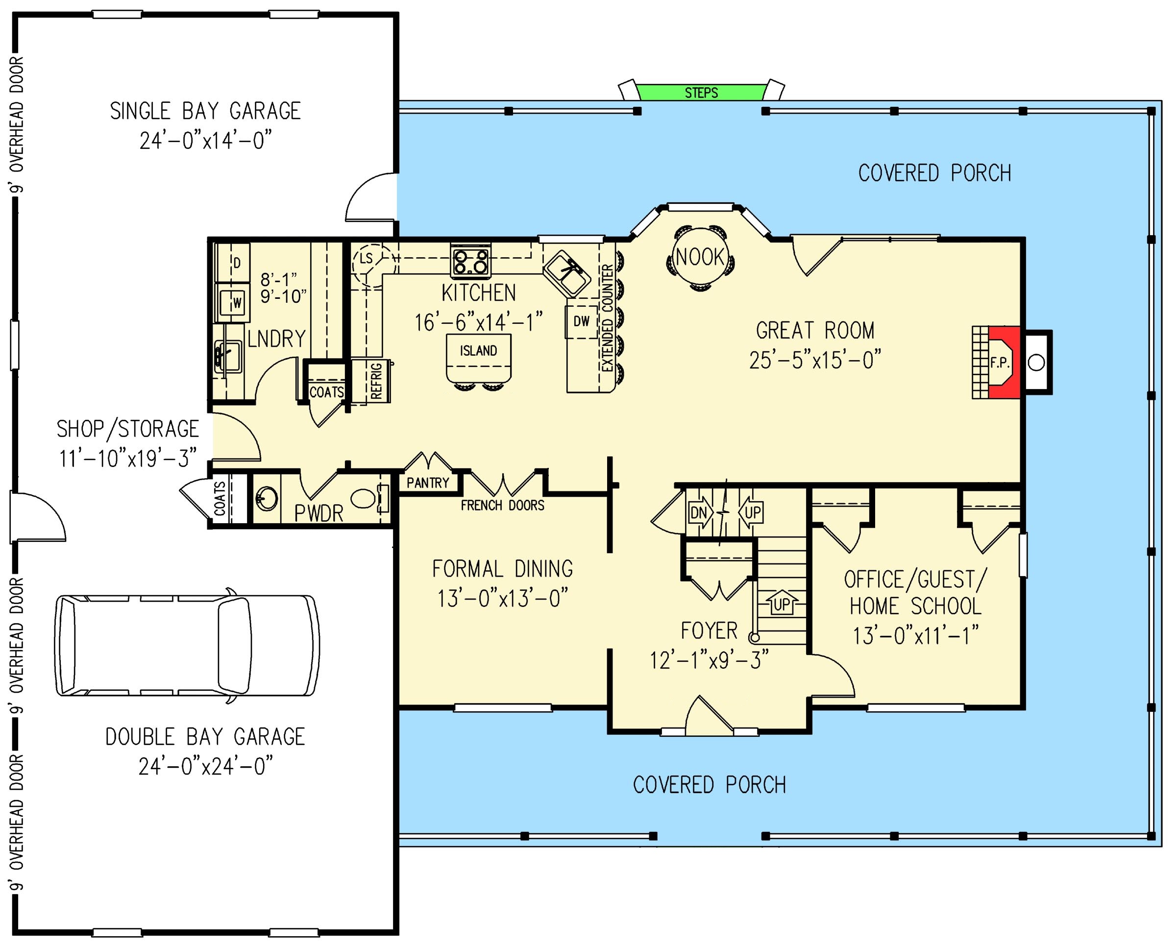
Home » SDL Pre-Priced Custom House Plans in Central PA » Custom Two Story Plans » Special Touches First Floor
View Plan Book
View Gallery