Call us today at (717) 258-1459 Quality you deserve with a price you can afford

About Us Testimonials Building Procedures Pre-Priced Plans Request an Estimate

Open Floor Plan and Vaulted Family Room

Open Floor Plan and Vaulted Family Room


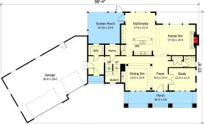
Open Floor Plan and Vaulted Family Room Plan Image - Floor 1

 

  • 3289 sq. ft.
  • 3 Car Garage
  • 3 Bedrooms
  • 2-1/2 Baths
  • Screened Porch


Open Floor Plan and Vaulted Family Room Plan Image - Floor 2

TS33

Request An Estimate

SDL Pre-Priced plans

View Plan Book

Gallery of Homes

View Gallery