Creative Blending of Materials

Choose a custom two-story home plan featuring a creative blending of high quality materials to meet your unique design preferences and lifestyle requirements.
Select a Custom Two-Story Home Plan With Contemporary Features
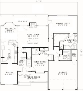
These beautiful custom four-bedroom home plans include flexible features such as:
- Spacious 3,209 sq. ft. two-story floorplan with three baths and a two-car garage
- Expansive great room with balcony
- Flexible 12’0” x 13’2” first-floor room that is ideal for a guest room or study
- Covered porch for relaxation and enjoying the evening breeze
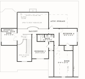
- Optional study/flex room on the second floor
Why Choose SDL for Your Custom Home Design?
When you choose SDL Custom Homes to help you develop the custom two-story home plan of your dreams, you’ll benefit from:
- Free, no-money-down design process
- Comprehensive design process, including a third walk-through, so you can fully visualize your dream home
- Pre-priced plans that include standard luxury features that other builders charge extra for
- The ability to modify your design at no additional charge before construction begins
- Lifetime warranty on architectural shingles
Learn more about how SDL Custom Homes can make your dream of owning a custom home come true. Contact us to request a custom two-story home plan estimate today!
TS32


