Call us today at (717) 258-1459 Quality you deserve with a price you can afford

About Us Testimonials Building Procedures Pre-Priced Plans Request an Estimate

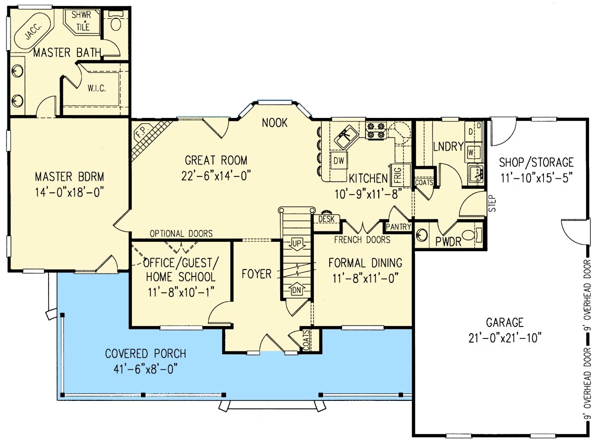
Timeless Country Victorian First Floor Plan

6519rf_f1

SDL Pre-Priced plans

View Plan Book

Gallery of Homes

View Gallery