Call us today at (717) 258-1459 Quality you deserve with a price you can afford

About Us Testimonials Building Procedures Pre-Priced Plans Request an Estimate

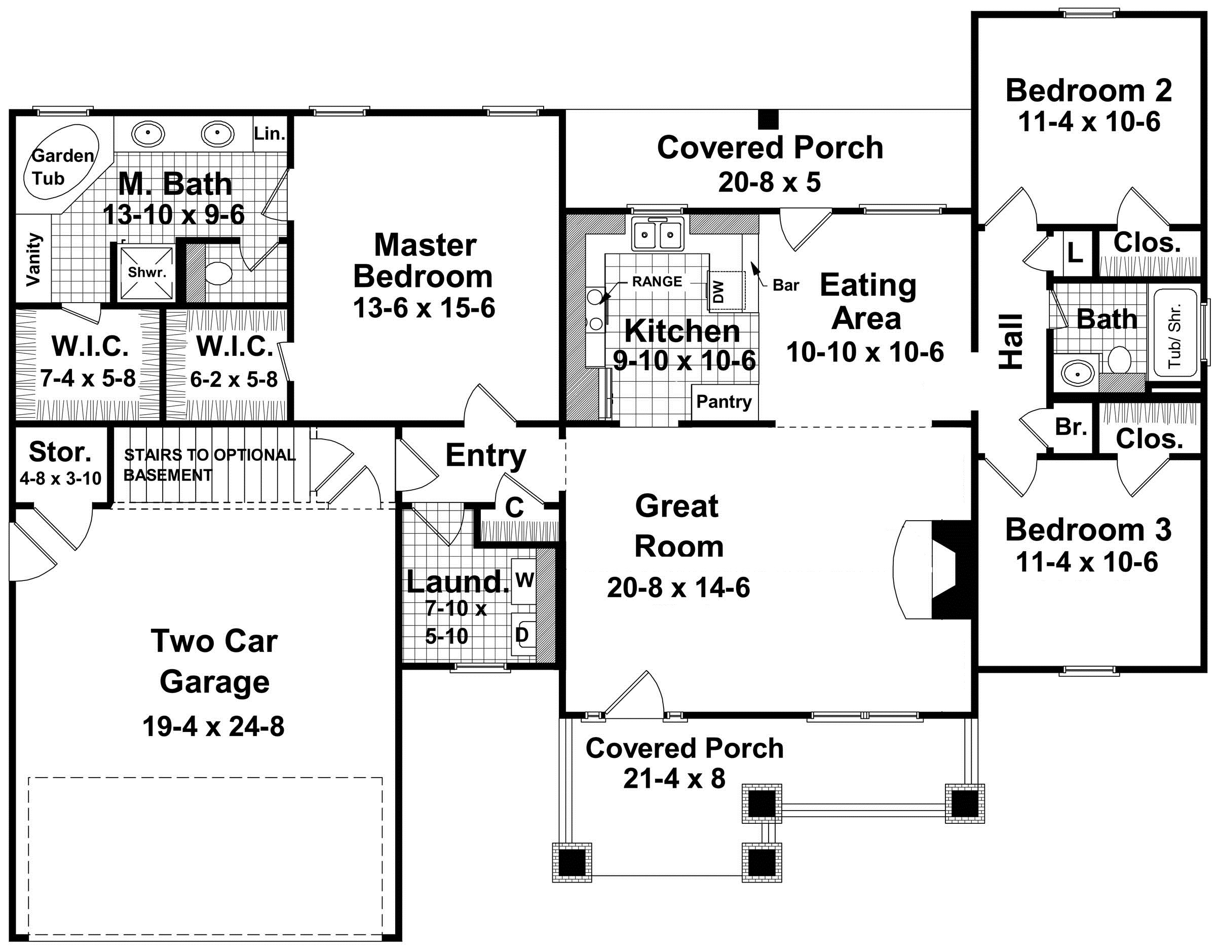
Charming Craftsmen House Plan Floor Layout

51040mm_f1

SDL Pre-Priced plans

View Plan Book

Gallery of Homes

View Gallery