Spacious Home Plan
Open-Concept Cape Cod Home Plan
Do you love the traditional good looks of a Cape Cod home but worry that the interior layout won’t work for the modern lifestyle you want? Reach out to SDL Custom Homes. Our open-concept Cape Cod home plan could meet your needs.
Cape Cod Home Plan Details
Our Cape Cod home plan offers the classic curb appeal and smart design that today’s buyers love. With this plan, there’s no need to buy an older home and renovate. With SDL Custom Homes, you can get the exact layout you want without sacrificing the charm you love about the homes of yesteryear!
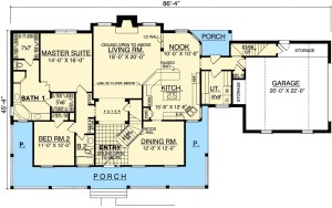
Details you’ll discover in our Cape Cod home plan include:
- A beautiful front porch with timeless appeal, ensuring you’ll spend many enjoyable hours outdoors, even when the weather won’t cooperate
- A welcoming foyer that leads to an open-concept kitchen and living area
- A first-floor master bedroom with an en suite bath and plenty of room for his-and-hers walk-in closets
- A stunning loft area that overlooks the living room
- Excellent closet space in the second-floor bedrooms
- A bonus room that could make an excellent office, playroom or extra bedroom
Cape Cod Home Plan Specifications
Excellent design maximizes this plan’s floor space and ensures incredible flow and livability. With four bedrooms, three bathrooms and a bonus room, there’s space for everyone in your family.
Specifications for our Cape Cod home plan include:
- 2656 sq. ft.
- 370 sq. ft. Bonus Room
- 2 Car Garage
- 4 Bedrooms
- 3 Baths
- Wrap Around Porch
CC14
Request a Free Estimate Today
At SDL Custom Homes, we’re ready to help you bring your vision to reality. Get in touch with us for more information about our home plans! We’re a leader in central Pennsylvania homebuilding because we help our customers adapt plans to their needs and build every home to exceed construction standards.
For more information about the Cape Cod home plan from SDL Custom Homes, complete our contact form today.



